Lilac Mudroom for Moonstone Builds

$4,705.00
Only 1 available

Custom Mudroom Locker System

 

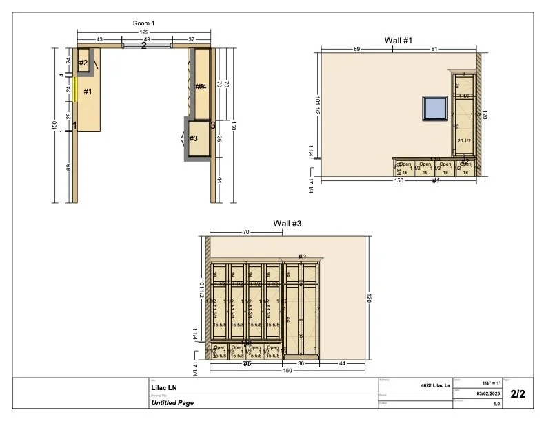
   Right Wall - Approx 18.83 LF of Full Height Maple Frameless Cabinetry + Bench

1)     70” Maple Bench Seat w/4 open cubbies at 15 5/8” W x 17 ¼” H

2)     70” x 69” Mudroom Lockers w/4 Main Doors (51 ¾” x 15 5/8”) and 4 Upper Doors at 18” x 15 1/8”

3)     36” x 66” Tallboy Closet with 2 Doors 4 adjustable shelves

4)     36” x 18” Upper Cabinet with 2 Doors

5)     36” Toe Kick

6)     16 LF side fill trim and returns

7)     16 LF of Crown

8)     Consumables – 2.6

9)     Finish – 13.2

 

    Left Wall - Approx 2 LF of Full Height Maple Frameless Cabinetry + Bench

1)     76” Maple Bench Seat w/4 open cubbies at 15 3/4” W x 18” H

2)     24” Tallboy Closet with 1 Main Door (20 ½” x 56” and 1 Upper Door (20 ½” x 18”)

3)     8 LF side fill trim and return

4)     4’ of Crown

5)     Consumables – 1.1

6)     Finish – 11.7

 

 

All cabinet carcasses will be prefinished maple with doors and millwork in maple with clear coat to closely match existing cabinetry in the client’s home. 

Current Estimated Standard Production cue is 8-12 weeks from the date the deposit clears.

Proposal Pricing is based off of contractor provided drawings and Scope. 

Cypress Designs reserves the right to modify actual build based on the general drawings and aesthetics of the project.

Total - $9,410

Depsoit Due - $4,705

Custom Mudroom Locker System

 

   Right Wall - Approx 18.83 LF of Full Height Maple Frameless Cabinetry + Bench

1)     70” Maple Bench Seat w/4 open cubbies at 15 5/8” W x 17 ¼” H

2)     70” x 69” Mudroom Lockers w/4 Main Doors (51 ¾” x 15 5/8”) and 4 Upper Doors at 18” x 15 1/8”

3)     36” x 66” Tallboy Closet with 2 Doors 4 adjustable shelves

4)     36” x 18” Upper Cabinet with 2 Doors

5)     36” Toe Kick

6)     16 LF side fill trim and returns

7)     16 LF of Crown

8)     Consumables – 2.6

9)     Finish – 13.2

 

    Left Wall - Approx 2 LF of Full Height Maple Frameless Cabinetry + Bench

1)     76” Maple Bench Seat w/4 open cubbies at 15 3/4” W x 18” H

2)     24” Tallboy Closet with 1 Main Door (20 ½” x 56” and 1 Upper Door (20 ½” x 18”)

3)     8 LF side fill trim and return

4)     4’ of Crown

5)     Consumables – 1.1

6)     Finish – 11.7

 

 

All cabinet carcasses will be prefinished maple with doors and millwork in maple with clear coat to closely match existing cabinetry in the client’s home. 

Current Estimated Standard Production cue is 8-12 weeks from the date the deposit clears.

Proposal Pricing is based off of contractor provided drawings and Scope. 

Cypress Designs reserves the right to modify actual build based on the general drawings and aesthetics of the project.

Total - $9,410

Depsoit Due - $4,705